
Earlestown, Market Place
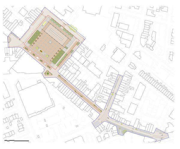
A refreshed market square for one of the UK’s oldest working markets. The redevelopment enhances the square’s infrastructure and design, providing a flexible, welcoming space in the historical heart of Earlestown.
Key features
Enhancing placemaking
The new placemaking strategy for the development incorporates SuDS features and below ground attenuation.
New covered market hall
The new, partially covered market hall provides modern facilities for the market and enables year-round use.
Structure referencing local heritage
The market canopy is supported by arches on each side which reference local heritage railway viaducts, namely the Sankey Viaduct.
Pedestrian-friendly public realm
The development also includes pedestrian-friendly improvements to key high streets between the railway station and the market.





Highways, Sketch by Planit, Landscape Architects


01-02






Highways, Sketch by Planit, Landscape Architects


